ТОВ Экосруб - будівництво будинків, бань та альтанок з оциліндрованої колоди. ТОВ Экосруб - будівництво будинків, бань та альтанок з оциліндрованої колоди.
  • Будівництво Як ми будуємо
  • Проєкти Що ми пропонуємо
  • Ціни Наша цінова політика
  • Фото наших робіт
  • РЕСТАВРАЦІЯ ЗРУБІВ
  • Столярні вироби вироби з деревини
  • Антисептики ECOSEPT
  • Корисні статті
  • Контакти Наші координати
UA RU
+38 (067) 483-21-83
+38 (095) 558-88-78

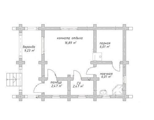
Дерев´яна лазня


Загальна площа: 48 м2
Житлова площа: м2
Кіл-ть поверхів: 1 поверх(ів)





Всі права захищені © 2026
ТМ «Екозруб» - будівництво дерев'яних будинків
Україна, м. Дніпро +38 (067) 483-21-83 +38 (095) 558-88-78 info@ecosrub.dp.ua ФОП Черкашин О.І.
  • головна
  • контакти
  • корисні статті
  • реставрація зрубів
  • будівництво
  • фото наших робіт
  • проєкти
  • ціни
  • столярні вироби
  • антисептики ECOSEPT
Ми в Facebook Ми в Instagram Ми в Twitter Ми в WhatsApp Ми в Viber Ми в Telegram Ми в Blogger Ми в YouTube